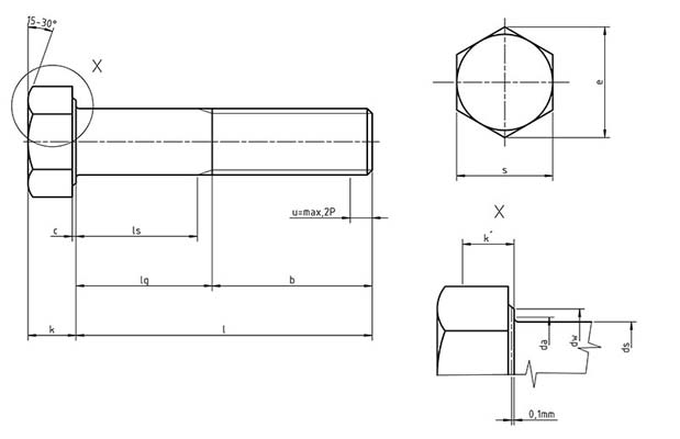
| Thread d | b | c | da | ds | dw | e | k | k | r | s | ||||||||||||||
|---|---|---|---|---|---|---|---|---|---|---|---|---|---|---|---|---|---|---|---|---|---|---|---|---|
| l<125mm | 125mm> l<200mm |
l>200mm | min. | max. | max. | max. | min. | min. | min. | nominal | Product grade A | Product grade B | min. | min. | nominal = max | min. | ||||||||
| Product Grade A | Product Grade B | Product Grade A | Product Grade B | Product Grade A | Product Grade B | min. | max. | min. | max. | Product Grade A | Product Grade B | |||||||||||||
| M8x1 | — | 22 | 28 | 41 | 0.15 | 0.6 | 9.2 | 8 | 7.78 | 7.64 | 11.6 | 11.4 | 14.38 | 14.2 | 5.3 | 5.15 | 5.45 | 5.06 | 5.54 | 3.54 | 0.4 | 13 | 12.73 | 12.57 |
| M10x1 | M10x1.25 | 26 | 32 | 45 | 0.15 | 0.6 | 11.2 | 10 | 9.78 | 9.64 | 15.6 | 15.4 | 18.9 | 18.72 | 6.4 | 6.22 | 6.58 | 6.11 | 6.69 | 4.28 | 0.4 | 17 | 16.73 | 16.57 |
| M12x1.5 | M12x1.25 | 30 | 36 | 49 | 0.15 | 0.6 | 13.7 | 12 | 11.73 | 11.57 | 17.4 | 17.2 | 21.1 | 20.88 | 7.5 | 7.32 | 7.68 | 7.21 | 7.79 | 5.05 | 0.6 | 19 | 18.67 | 18.48 |
| M14x1.5 | — | 34 | 40 | 53 | 0.15 | 0.6 | 15.7 | 14 | 13.73 | 13.57 | 20.5 | 20.1 | 24.49 | 23.91 | 8.8 | 8.62 | 8.96 | 8.51 | 9.09 | 5.96 | 0.6 | 22 | 21.67 | 21.16 |
| M16x1.5 | — | 38 | 44 | 57 | 0.2 | 0.8 | 17.7 | 16 | 15.73 | 15.57 | 22.5 | 22 | 26.75 | 26.17 | 10 | 9.82 | 10.18 | 9.81 | 10.29 | 6.8 | 0.6 | 24 | 23.67 | 23.16 |
| M18x2 | M18x1,5 | 42 | 48 | 61 | 0.2 | 0.8 | 20.2 | 18 | 17.73 | 17.57 | 25.3 | 24.8 | 30.14 | 29.56 | 11.5 | 11.28 | 11.72 | 11.15 | 11.85 | 7.8 | 0.6 | 27 | 26.67 | 26.16 |
| M20x1.5 | M20x2 | 46 | 52 | 65 | 0.2 | 0.8 | 22.4 | 20 | 19.67 | 19.48 | 28.2 | 27.7 | 33.53 | 32.95 | 12.5 | 12.28 | 12.72 | 12.15 | 12.85 | 8.5 | 0.8 | 30 | 29.67 | 29.16 |
| M22x2 | M22x1.5 | 50 | 56 | 69 | 0.2 | 0.8 | 24.4 | 22 | 21.67 | 21.48 | 30 | 29.5 | 35.72 | 35.03 | 14 | 13.78 | 14.22 | 13.65 | 14.35 | 9.6 | 0.8 | 32 | 31.61 | 31 |
| M24x2 | M24x1.5 | 54 | 60 | 73 | 0.2 | 0.8 | 26.4 | 24 | 23.67 | 23.48 | 33.6 | 33.2 | 39.98 | 39.55 | 15 | 14.78 | 15.22 | 14.65 | 15.35 | 10.3 | 0.8 | 36 | 35.38 | 35 |
Notes : Non preferred size, not recommended for new design due to limited availability
| Thread d | b | c | da | ds | dw | e | k | k | r | s | ||||||||
|---|---|---|---|---|---|---|---|---|---|---|---|---|---|---|---|---|---|---|
| l<125mm | 125mm> l<200mm |
200mm | min. | max. | max. | max. | min. | min. | min. | nominal | min | max | min. | min. | nominal = max | min. | ||
| M27x2 | — | 60 | 66 | 79 | 0.2 | 0.8 | 30.4 | 27 | 26.48 | 38 | 45.2 | 17 | 16.65 | 17.35 | 11.7 | 1 | 41 | 40 |
| M30x2 | — | 66 | 72 | 85 | 0.2 | 0.8 | 33.4 | 30 | 29.48 | 42.7 | 50.85 | 18.7 | 18.28 | 19.12 | 12.8 | 1 | 46 | 45 |
| M33x2 | — | 72 | 78 | 91 | 0.2 | 0.8 | 36.4 | 33 | 32.38 | 46.6 | 55.37 | 21 | 20.58 | 21.42 | 14.4 | 1 | 50 | 49 |
| M36x3 | — | 78 | 84 | 97 | 0.2 | 0.8 | 39.4 | 36 | 35.38 | 51.1 | 60.79 | 22.5 | 22.08 | 22.92 | 15.5 | 1 | 55 | 53.8 |
| M39x3 | — | 84 | 90 | 103 | 0.3 | 1 | 42.4 | 39 | 38.38 | 55.9 | 66.44 | 25 | 24.58 | 25.42 | 17.2 | 1 | 60 | 58.8 |
| M42x3 | — | 90 | 96 | 109 | 0.3 | 1 | 45.6 | 42 | 41.38 | 59.9 | 71.3 | 26 | 25.58 | 26.42 | 17.9 | 1.2 | 65 | 63.1 |
| M45x3 | — | 96 | 102 | 115 | 0.3 | 1 | 48.6 | 45 | 44.38 | 64.7 | 76.95 | 28 | 27.58 | 28.42 | 19.3 | 1.2 | 70 | 68.1 |
| M48x3 | — | 102 | 106 | 121 | 0.3 | 1 | 52.6 | 48 | 47.38 | 69.4 | 82.6 | 30 | 29.58 | 30.42 | 20.9 | 1.6 | 75 | 73.1 |
| M52x3 | — | – | 116 | 129 | 0.3 | 1 | 56.6 | 52 | 51.26 | 74.2 | 88.25 | 33 | 32.5 | 33.5 | 22.8 | 1.6 | 80 | 78.1 |
Notes : Non preferred size, not recommended for new design due to limited availability
| Thread d | M8x1 | M10x1 | M12x1.5 | M14x1.5 | M16x1.5 | M18x2 | M20x1.5 | M22x2 | M24x2 | M27x2 | M30x2 | M33x2 | M36x3 | M39x3 | M42x3 | M45x3 | M48x3 | M52x3 | ||||||||||||||||||||||
|---|---|---|---|---|---|---|---|---|---|---|---|---|---|---|---|---|---|---|---|---|---|---|---|---|---|---|---|---|---|---|---|---|---|---|---|---|---|---|---|---|
| – | M10x1.25 | M12x1.25 | – | – | M18x1.5 | M20x2 | M22x1.5 | M24x1.5 | – | – | – | – | – | – | – | – | – | |||||||||||||||||||||||
| l | Product grade | |||||||||||||||||||||||||||||||||||||||
| A | B | ls | lg | ls | lg | ls | lg | ls | lg | ls | lg | ls | lg | ls | lg | ls | lg | ls | lg | ls | lg | ls | lg | ls | lg | ls | lg | ls | lg | ls | lg | ls | lg | ls | lg | ls | lg | |||
| Nominal | min | max | min | max | min | max | min | max | min | max | min | max | min | max | min | max | min | max | min | max | min | max | min | max | min | max | min | max | min | max | min | max | min | max | min | max | min | max | min | max |
| 35 | 34.5 | 35.5 | – | – | 8 | 13 | ||||||||||||||||||||||||||||||||||
| 40 | 39.5 | 40.5 | – | – | 13 | 18 | 7.75 | 14 | ||||||||||||||||||||||||||||||||
| 45 | 44.5 | 45.5 | – | – | 18 | 23 | 12.75 | 19 | 7.5 | 15 | ||||||||||||||||||||||||||||||
| 50 | 49.5 | 50.5 | – | – | 23 | 28 | 17.75 | 24 | 12.5 | 20 | 8.5 | 16 | ||||||||||||||||||||||||||||
| 55 | 54.4 | 55.6 | – | – | 28 | 33 | 22.75 | 29 | 17.5 | 25 | 13.5 | 21 | 9.5 | 17 | ||||||||||||||||||||||||||
| 60 | 59.4 | 60.6 | – | – | 33 | 38 | 27.75 | 34 | 22.5 | 30 | 18.5 | 26 | 14.5 | 22 | ||||||||||||||||||||||||||
| 65 | 64.4 | 65.6 | – | – | 38 | 43 | 32.75 | 39 | 27.5 | 35 | 23.5 | 31 | 19.5 | 27 | 13 | 23 | 9 | 19 | ||||||||||||||||||||||
| 70 | 69.4 | 70.6 | – | – | 43 | 48 | 37.75 | 44 | 32.5 | 40 | 28.5 | 36 | 24.5 | 32 | 18 | 28 | 14 | 24 | 10 | 20 | ||||||||||||||||||||
| 75 | 74.4 | 75.6 | – | – | 48 | 53 | 42.75 | 49 | 37.5 | 45 | 33.5 | 41 | 29.5 | 37 | 23 | 33 | 19 | 29 | 15 | 25 | ||||||||||||||||||||
| 80 | 794 | 80.6 | – | – | 53 | 58 | 47.75 | 54 | 42.5 | 50 | 38.5 | 46 | 34.5 | 42 | 28 | 38 | 24 | 34 | 20 | 30 | 16 | 26 | ||||||||||||||||||
| 85 | 84.3 | 85.7 | 83.25 | 88.75 | 58 | 63 | 52.75 | 59 | 47.5 | 55 | 43.5 | 51 | 39.5 | 47 | 33 | 43 | 29 | 39 | 25 | 35 | 21 | 31 | ||||||||||||||||||
| 90 | 89.3 | 90.7 | 88.25 | 91.75 | 63 | 68 | 57.75 | 64 | 52.5 | 60 | 48.5 | 56 | 44.5 | 52 | 38 | 48 | 34 | 44 | 30 | 40 | 26 | 36 | 20 | 30 | 14 | 24 | ||||||||||||||
| 95 | 94.3 | 95.7 | 93.25 | 93.75 | 68 | 73 | 62.75 | 69 | 57.5 | 65 | 53.5 | 61 | 49.5 | 57 | 43 | 53 | 39 | 49 | 35 | 45 | 31 | 41 | 25 | 35 | 19 | 29 | ||||||||||||||
| 100 | 99.3 | 100.7 | 98.25 | 101.75 | 73 | 79 | 67.75 | 74 | 62.5 | 70 | 58.5 | 65 | 54.5 | 62 | 48 | 58 | 44 | 54 | 40 | 50 | 36 | 46 | 30 | 40 | 24 | 34 | 18 | 28 | ||||||||||||
| 110 | 109.3 | 110.7 | 108.25 | 111.75 | 77.75 | 84 | 72.5 | 80 | 68.5 | 76 | 64.5 | 72 | 58 | 68 | 54 | 64 | 50 | 60 | 46 | 56 | 40 | 50 | 34 | 44 | 28 | 38 | 17 | 32 | ||||||||||||
| 120 | 119.3 | 120.7 | 118.25 | 121.75 | 87.75 | 94 | 82.5 | 90 | 78.5 | 86 | 74.5 | 82 | 68 | 78 | 64 | 74 | 60 | 70 | 56 | 66 | 50 | 60 | 44 | 54 | 38 | 48 | 27 | 42 | 21 | 36 | ||||||||||
| 130 | 129.2 | 130.8 | 128 | 132 | 91.75 | 98 | 86.5 | 94 | 82.5 | 90 | 76.5 | 86 | 72 | 82 | 68 | 78 | 64 | 74 | 60 | 70 | 54 | 64 | 48 | 58 | 42 | 52 | 31 | 46 | 25 | 40 | 19 | 34 | 13 | 28 | ||||||
| 140 | 139.2 | 140.8 | 138 | 142 | 101.75 | 108 | 96.5 | 104 | 92.5 | 100 | 88.5 | 96 | 82 | 92 | 78 | 88 | 74 | 84 | 70 | 80 | 64 | 74 | 58 | 68 | 52 | 62 | 41 | 56 | 35 | 50 | 29 | 44 | 23 | 38 | 17 | 32 | ||||
| 150 | 149.2 | 150.8 | 148 | 152 | 111.75 | 118 | 106.5 | 114 | 102.5 | 110 | 98.5 | 106 | 92 | 102 | 88 | 98 | 84 | 94 | 80 | 90 | 74 | 84 | 68 | 78 | 62 | 72 | 51 | 66 | 45 | 60 | 39 | 54 | 33 | 48 | 27 | 42 | 19 | 34 | ||
| 160 | 159.2 | 160.8 | 158 | 162 | 116.5 | 124 | 112.5 | 12 | 108.5 | 116 | 102 | 112 | 98 | 108 | 94 | 104 | 90 | 100 | 84 | 94 | 78 | 88 | 72 | 82 | 61 | 76 | 55 | 70 | 49 | 64 | 43 | 58 | 37 | 52 | 29 | 44 | ||||
| 170 | 169.2 | 170.8 | 168 | 172 | 126.5 | 134 | 122.5 | 130 | 118.5 | 126 | 112 | 122 | 108 | 118 | 104 | 114 | 100 | 110 | 94 | 104 | 88 | 98 | 82 | 92 | 71 | 86 | 65 | 80 | 59 | 74 | 53 | 68 | 47 | 62 | 39 | 54 | ||||
| 180 | 179.2 | 180.8 | 178 | 182 | 136.5 | 144 | 132.5 | 140 | 128.5 | 136 | 122 | 132 | 118 | 128 | 114 | 124 | 110 | 120 | 104 | 114 | 98 | 108 | 92 | 102 | 81 | 96 | 75 | 90 | 69 | 84 | 63 | 78 | 57 | 72 | 49 | 64 | ||||
| 190 | 189.08 | 190.92 | 187.7 | 192.3 | 142.5 | 150 | 138.5 | 146 | 132 | 142 | 128 | 138 | 124 | 134 | 120 | 130 | 114 | 124 | 108 | 118 | 102 | 112 | 91 | 106 | 85 | 100 | 79 | 94 | 73 | 88 | 67 | 82 | 59 | 74 | ||||||
| 200 | 199.08 | 200.92 | 197.7 | 202.3 | 152.5 | 160 | 148.5 | 156 | 142 | 152 | 138 | 148 | 134 | 144 | 130 | 140 | 124 | 134 | 118 | 128 | 112 | 122 | 101 | 116 | 95 | 110 | 89 | 104 | 83 | 98 | 77 | 92 | 69 | 84 | ||||||
| 220 | 217.7 | 222.3 | 125 | 135 | 119 | 129 | 108 | 123 | 102 | 117 | 96 | 111 | 90 | 105 | 84 | 99 | 76 | 91 | ||||||||||||||||||||||
| 240 | 237.7 | 242.3 | 145 | 155 | 139 | 149 | 128 | 143 | 122 | 137 | 116 | 131 | 110 | 125 | 104 | 119 | 96 | 111 | ||||||||||||||||||||||
| 260 | 257.4 | 262.6 | 165 | 175 | 159 | 169 | 148 | 163 | 142 | 157 | 136 | 151 | 130 | 145 | 124 | 139 | 116 | 131 | ||||||||||||||||||||||
| 280 | 277.4 | 282.6 | 179 | 189 | 168 | 183 | 162 | 177 | 156 | 171 | 150 | 165 | 144 | 159 | 136 | 151 | ||||||||||||||||||||||||
| 300 | 297.4 | 302.6 | 199 | 209 | 188 | 203 | 182 | 197 | 176 | 191 | 170 | 185 | 164 | 179 | 156 | 171 | ||||||||||||||||||||||||
Notes : Non preferred size, not recommended for new design due to limited availability