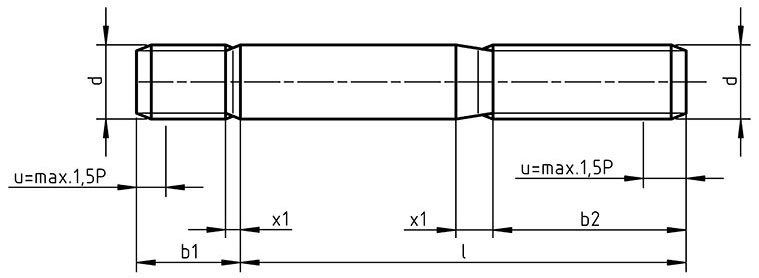
Dimensions for PN 82131 - Studs, with engagement length 1,25 x d

Dimensions for PN 82131 - Studs, with engagement length 1,25 x d

Thread db1b2 l<125mmb2 125>l<200mmb2 l>200mmx1x2
M4514201.750.9
M56.516221.751
M67.5182421.25
(M7)920262.51.25
M8M8x11022282.51.6
M10M10x1.25122632453.21.9
M12M12x1.25M12x1.5153036493.82.2
(M14)(M14x1.5)183440534.32.5
M16M16x1.52038445752.5
(M18)(M18x1.5)2242486153.2
M20M20x1.5254652656.33.2
(M22)(M22x1.5)285056696.33.2
M24M24x2305460737.53.8